Разработка ППРк
Проект производства работ кранами (ППРк) - одна из разновидностей проекта производства работ (ППР), в котором разрабатываются мероприятия по безопасной работе крана (грузоподъемной машины, подъемного сооружения).
Работа крана (грузоподъемной машины, подъемного сооружения) в обязательном порядке должна производится по разработанным проектам производства работ или технологическим картам погрузочно-разгрузочных работ.
Для разработки решений в проекте производства работ необходимы:
- проект организации строительства (ПОС);
- необходимая рабочая документация;
- марка ГПМ;
- особые условия строительства, связанные с возникновением зон постоянно действующих и потенциально действующих опасных производственных факторов.
В состав проекта производства работ входит:
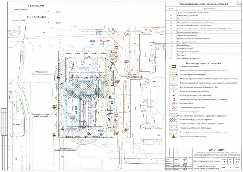
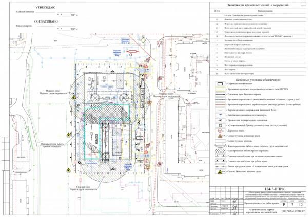
- Строительный генеральный план – определяет границы стройплощадки, месторасположение строящихся и временных зданий и сооружений, дорог, подземных/надземных сетей и коммуникаций, строительных и грузоподъемных машин и т.д.
- Пояснительная записка – обосновывает решения по производству работ, покрытию потребности в энергетических ресурсах на стройплощадке, условиям привязки мобильных зданий и устройств к участкам стройплощадки; приводит перечень мероприятий по обеспечению сохранности имущества на стройплощадке, по защите зданий и сооружений от повреждений.
Специалисты ООО «КРАН СЕРВИС» выполнят разработку следующих ППРк:
- Проект производства работ башенными кранами.
- Проект производства работ гусеничными, самоходными, автомобильными кранами.
- Проект производства работ на установку (монтаж) башенного крана.
Подробную информацию Вы можете получить у наших специалистов по телефонам в г.Петрозаводске:
(8142) 744-072, 566-060, +7 921 800 83 92
E-mail: kranservis-rk@yandex.ru
На главную
Написать письмо
